In about 1991 I changed a long glasshouse to
a cold shed, a "stone garden", an atelier, and a cold glasshouse/verandah.
In the glasshouse were growing fantastic flowers.
I repaired the glasses of the glasshouse.
My wife is near by if I should step through.
I have dressed heavily not to cut myself much if I should fall down.
In 20 years I never fell.
You can see the 40 sqm sunpanel on the roof.
In 2010 I changed the porch to an apartment.
It is an ecological house.
It is socially ecological.
Materialk has been reused.
Randomness is honored.
It saves energy in many ways.
Own work is own work.
Easyness and joyfullness to build is important.
There are many archtectural ideas in the house.
We live from what we can get from garden and nature.
We have a good water and sewage system.
We have a fine system for refuse.
We can work at home.
The windows.
We have a readyness for own electricity.
We are self sufficient in many ways.
The house should be a model for other people and planners.
It is socially ecological. My children live near by.
Material has been reused. Most material of the glasshouse is in use in the new house.
Randomness is honored. Life is random. Exactness is expensive and dead.
It saves energy in many ways. Very good insulation. Three doble selective glasses. Best possible heat pump from air. Ventilation with exchange of heat. Very effective fireplace for extra warmth.
Cork surface on floor - it feels always warm.
Own work is own work. You will for ever remember the nail you
hammerd there. You know as your own work every detail of the house. The hous is a part of you - your life.
Easyness and joyfullness to build is important. Materails did not weigh too much. A cover was covering the place all time. Work could be enjoyed indoors.
There are many archtectural ideas in the house.
- The living room is like the village market with huts around.
- The house is like a ship with parts like in a ship. The inportant
funktions in front.
We live partly from what we can get from garden and nature.
We grow potatoes, vegetables, berries, onions, garlic and
spices. From aples we make much wine. In forest we pick
mushrooms. We also have many flowers.
We have a good water and sewage system.
The separating dry toilet gives us urine as a fine fertilizer.
Later the urine might be used for car energy.
We have a fine system for refuse.
Compost goes in one unit, kardboard in another, metals in
the third and undefined and plastic for the refuse bin.
Problem refuse goes in a small box - mostly batteries.
We can work at home. As the part for work is attached to the
living quarters we are oftest busy working. Also computer
work is arranged for.
The windows. The window framwes are made from thick planks.
Much cheaper than when bought. The main windows are to
the south and collect wonderful heat. They are near the ground so
we see flowers outside. All windows can be washed without a
ladder and are not opened. Exept for small wentilation windows.
We have a readyness for our own electricity. That trime will soon
come when nobody needs to buy electricity.
We are self sufficient in many ways. Like heating, food, work,
entertainment, safety in many ways as our children are neighbors
, later "petrol" for the car and electricity.
The house should be a model for other people and planners.

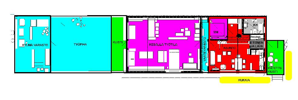
From left: storage house, garden for work, the summer workroom, the living quarters.
Green are prches. Yellow are flowers. Small lilah is bedroom. Light grey is bathroom.
Above the bedroom and bathroom is space for things and sleeping.
The ventilation system sucks air through a high and large
box so heavy dirt cannot come in. On the entrance to the tube is
a filter.
Ready after nine moths of hard work.
.
There is much sunlight
in the bathroom in the morning.
There is only a curtain (green) for the shower in the corner.
Thus you don´t feel closed in.
You can sit on the side of the bath tube.
Water will spread into the bath tube.
Thus there is double use of space.
Concrete is heated in winter
as the defrosting produces huge
amounts of ice.
There was built a filtering system
for grey sewage water. The toilet
is a dry toilet collecting urine for
fertilizing the garden.
Bedroom with dimensions
based on the size of the bed.
Is air conditioned and noise
insulated.
The roof had to be all made within one day. I fixed
48 beams, made the under cower of the roof in
14 hours hard work. As a result i got heart problems.